Kinh nghiệm pháp lý

Tìm hiểu về bản vẽ xin phép xây dựng nhà phố

Bản vẽ xây dựng nhà phố là thành phần cực kì cần thiết và quan trọng khi bạn muốn làm hồ sơ xin cấp xây dựng nhà phố.

Tuy nhiên, vẫn còn khá nhiều người chưa hiểu rõ về bản vẽ xin phép xây dựng nhà phố là như thế nào? Thực chất bản vẽ xin phép xây dựng là gì? Gồm những thành phần nào? Hãy cùng tìm hiểu trong bài viết sau đây nhé!

Bản vẽ xin phép xây dựng nhà phố là gì?

Bản vẽ xin phép xây dựng nhà phố là gì?
Ảnh: Bản vẽ xin phép xây dựng nhà phố là gì?

Bản vẽ xin phép xây dựng nhà phố là một thuật ngữ dường như đã quá quen thuộc trong giới xây dựng, nó là một trong những giấy tờ cần thiết cho quá trình xin cấp phép xây dựng.

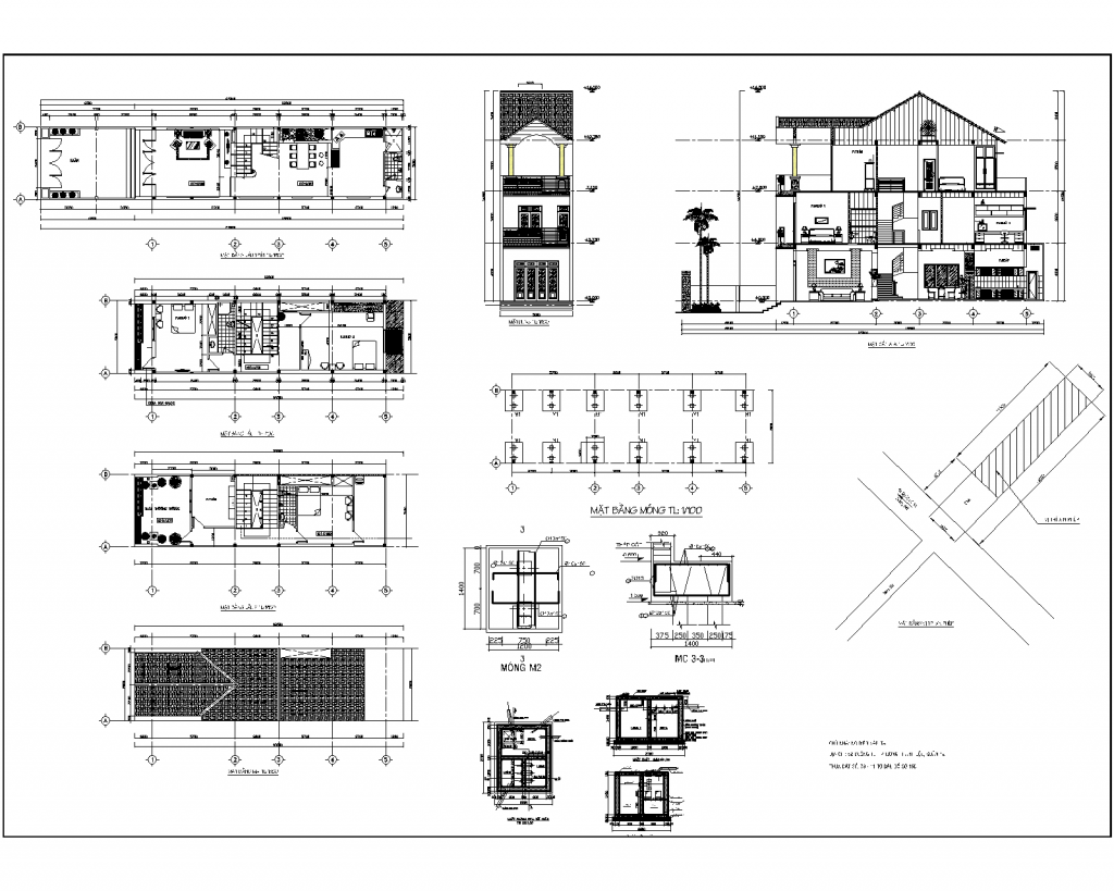
Bản vẽ xin cấp phép xây nhà phố thể hiện mặt bằng vị trí công trình cần thi công trên lô đất, chỉ rõ vị trí của công trình và những thông tin cơ bản về diện tích, chiều cao, mặt đứng cũng như mặt cắt của công trình.

Những thông tin đưa ra trong bản vẽ xây dựng tuy đơn giản nhưng nó sẽ là cơ sở giúp ủy ban nhân dân xã (phường), quận(huyện), thị xã, thành phố…xem xét và quyết định có cấp phép xây dựng hay không.

Tìm hiểu về bản vẽ xin phép xây dựng nhà phố

Mặt bằng căn nhà: gồm mặt bằng tổng thể và mặt bằng sơ bộ

  • Mặt bằng tổng thể là thể hiện diện tích xây dựng so với diện tích đất, quy ra diện tích sàn xây dựng.Mặt bằng bao gồm mặt bằng tổng thể và mặt bằng sơ bộ của diện tích nhà phố bạn muốn xây dựng:
  • Mặt bằng tổng thể: được hiểu là diện tích xây dựng so với diện tích đất tổng thể. Để biết diện tích xây dựng thì bạn cần kiểm tra mật độ xây dựng quy định của nơi bạn sinh sống yêu cầu.
  • Mặt bằng sơ bộ: là mặt bằng sơ bộ toàn bộ tất cả các tầng của ngôi nhà bao gồm đầy đủ cả tầng trệt, tầng lửng, tầng lầu, phần mái… mà bạn muốn xây dựng.
  • Mặt cắt căn nhà: bao gồm các mặt cắt dọc, mặt cắt ngang của ngôi nhà, phần móng và phần hầm tự hoại.
  • Mặt đứng ngôi nhà: là mặt tiền của ngôi nhà với đầy đủ thông số liên quan đến hình dạng và kích thước cơ bản, bao gồm cả phần mái. Bên cạnh đó, nó cũng thể hiện rõ chiều cao cụ thể các tầng của ngôi nhà.

Khung tên bản vẽ xin phép xây dựng nhà phố thể hiện đầy đủ 3 phần quan trọng như:

  • Tên công ty có chức năng xin phép xây dựng nhà phố: ở đây phải thể hiện đầy đủ tất cả các nội dung liên quan đến công ty(tên công ty, địa chỉ, mã số thuế, số điện thoại của chủ doanh nghiệp…)
  • Kiến trúc sư thiết kế: có chữ ký và họ tên cụ thể của kiến trúc sư thiết kế của công ty, người đảm nhiệm thiết kế phù hợp với nhu cầu của khách hàng và đảm bảo quy định xây dựng của quận, huyện, thị xã…
  • Chủ nhà: có chữ ký xác nhận và họ tên cụ thể của chủ nhà đúng với tên trên giấy chứng nhận quyền sử dụng đất. Trường hợp, giấy chứng nhận quyền sử dụng đất có cả hai vợ chồng đứng tên thì trong khung này phải có đủ tất cả chữ ký của cả hai vợ chồng.
  • Phần đặc biệt quan trọng: bạn cần dành một khoảng trống để cơ quan có thẩm quyền phê duyệt, ký tên và đóng dấu vào bản vẽ xây dựng cho bạn.

Ngoài ra, bản vẽ xin phép xây dựng nhà phố cần có bản đồ tọa độ vị trí: thể hiện tọa độ vị trí của khu đất cũng như liền kề những khu đất xung quanh.

  • Bản vẽ xin giấy phép xây dựng nhà phố cần thể hiện rõ cấu trúc ngôi nhà, diện tích cơ bản và sự liên hệ với các khu đất xung quanh. Các cơ quan chính quyền sẽ căn cứ trên thông tin đó để xác định công trình đảm bảo quy hoạch đô thị đúng tiêu chuẩn.
  • Bản vẽ xây dựng nhà phố này sẽ được lưu kèm với hồ sơ để đối chứng sau này khi gia chủ xây dựng. Nếu thực tế quá trình thi công sai so với bản vẽ được cấp phép, chủ nhà sẽ bị xử phạt theo quy định pháp luật, yêu cầu tháo dỡ phần sai phạm…

Vì vậy, tuy chỉ cung cấp những thông tin sơ bộ nhưng bản vẽ xây dựng nhà phố xin cấp phép cần sự chính xác và tuân thủ tuyệt đối của chủ nhà với từng chi tiết dù là nhỏ nhất.

Cơ sở dùng bản vẽ xin phép xây dựng nhà phố

  • Sau khi ký kết hợp đồng với đơn vị tư vấn thiết kế xây dựng, chủ đầu tư sẽ làm việc trực tiếp với các kiến trúc sư về các phương án bố trí mặt bằng sao cho phù hợp với nhu cầu của gia đình mình. Từ đó, các kiến trúc sư sẽ triển khai tiếp các bản vẽ mặt cắt, mặt đứng chính của ngôi nhà bạn.
  • Sau đó lấy những bản vẽ xây dựng này để triển khai bản vẽ xin giấy phép xây dựng nhà phố hoặc bản vẽ cấp phép xây dựng nhà cấp 4 để nộp vào hồ sơ xin cấp phép xây dựng cho công trình.

Bản vẽ xin phép xây dựng nhà phố trong hồ sơ xin cấp phép xây dựng

Bản vẽ trong hồ sơ xin cấp phép xây dựng
Ảnh: Bản vẽ trong hồ sơ xin cấp phép xây dựng.

Xây dựng nhà phố cần chú ý đến nhiều thứ. Trong đó, làm hồ sơ xin cấp phép xây dựng cũng vô cùng quan trọng, không thể lơ là. Hồ sơ đề nghị cấp giấy phép xây dựng bao gồm:

  • Đơn xin cấp giấy phép xây dựng theo mẫu: 01 bản
  • Giấy chứng nhận quyền sở hữu và quyền sử dụng đất (có kèm theo bản vẽ hiện): 01 bản
  • Bản vẽ triển khai thi công : 02 bản

Trong đó mỗi bộ bản vẽ triển khai thi công (bản vẽ xin giấy phép xây dựng) bao gồm:

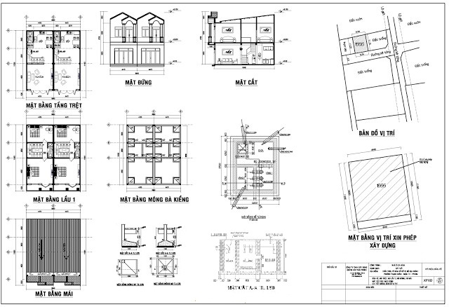
  • Bản vẽ mặt bằng vị trí công trình trên lô đất, mặt bằng ranh giới lô đất.
  • Bản vẽ các mặt bằng và các mặt đứng, mặt cắt chủ yếu của công trình.
  • Mặt bằng móng , mặt cắt móng, các bản vẽ kết cấu chịu lực chính (móng, khung, tường, mái chịu lực)

Từ đó có thể thấy tầm quan trọng của bản vẽ xây dựng. Nếu thiếu sẽ không hoàn thiện bộ hồ sơ, và có thể không được cấp phép xây dựng mới.

Mẫu bản vẽ xin cấp phép xây dựng hiện nay gồm 2 loại chính:

  • Bản vẽ xin cấp phép xây dựng nhà cấp 4
  • Bản vẽ cấp phép xây dựng nhà phố.

Một số quy định về bản vẽ xin phép xây dựng nhà phố

Một số quy định về bản vẽ xin phép xây dựng
Ảnh: Một số quy định về bản vẽ xin phép xây dựng.

Quy định về bản vẽ xin phép xây dựng nhà phố: bản vẽ xin phép xây dựng nhà phố phải phù hợp với quy hoạch xây dựng được duyệt, chịu trách nhiệm trước pháp luật về chất lượng thiết kế, tác động của công trình lên môi trường và đảm bảo an toàn đối với các công trình lân cận.

Bản vẽ xin phép xây dựng nhà phố hoặc nhà cấp 4 cần được đảm bảo các thông số:

  • Mật độ xây dựng: tùy đặc điểm của từng khu vực, nhà nước sẽ ban hành mật độ xây dựng mà bạn cần phải tuân theo.
  • Quy mô xây dựng.
  • Chiều cao tầng.

Ngoài ra, bản vẽ xin phép xây dựng nhà phố cần đảm bảo một số quy định khác:

  • Khổ giấy bản vẽ xin phép xây dựng: bạn nên in bản vẽ trên khổ giấy A1 hoặc A0 để đảm bảo các chi tiết được thể hiện rõ ràng và chính xác nhất.
  • Bản vẽ xin phép xây dựng cần đảm bảo quy định về việc mở ban công, cửa sổ, lỗ thông hơi sang nhà kế cận và xây dựng trong các khu nhà liền kề cũng phải được thể hiện trong bản vẽ.
  • Từ tầng hai trở lên: trên các bức tường cách ranh giới đất với công trình bên cạnh dưới 2m, không được mở cửa đi, cửa sổ, mép ngoài của ban công trong sang nhà hàng xóm mà phải cách ranh giới đất giữa 2 nhà ít nhất là 2m.
  • Khi chủ công trình có nhu cầu mở ban công, cửa sổ, lỗ thông hơi trên các bức tường cách ranh giới đất nhỏ hơn 2m thì trong hồ sơ xin cấp phép xây dựng cần phải có thêm văn bản thỏa thuận với hộ gia đình liền kề có chứng thực của Ủy ban nhân dân phường, xã…
  • Vị trí mở cửa cần tránh tia nhìn trực tiếp vào nội thất của nhà bên cạnh. Khi thỏa thuận bị hủy bỏ thì việc bít ban công, cửa sổ, lỗ thông hơi là mặc nhiên không phải xét xử.

Theo quy định tại Nghị định số: 121/2013/NĐ-CP, thì nếu xây dựng nhà vượt quá mức cho phép được ghi trong giấy phép xây dựng phải chịu hình thức xử phạt tương ứng trong Nghị định này, trừ những trường hợp sau:

  • Thay đổi thiết kế bên trong công trình mà không ảnh hưởng đến việc phòng cháy chữa cháy; môi trường; công năng sử dụng; kết cấu chịu lực chính hoặc kiến trúc mặt ngoài công trình. 
  • Giảm số tầng so với giấy phép xây dựng đối với những khu vực chưa có quy hoạch chi tiết xây dựng tỷ lệ 1/500 hoặc thiết kế đô thị đã được phê duyệt.
  • Như vậy, có nghĩa là nếu xây dựng nhà sai bản thiết kế ở bên trong và không ảnh hưởng đến an toàn công trình hoặc giảm số tầng thì sẽ không bị xử phạt.

Quy trình cấp giấy phép xây dựng nhà phố

Bước 1: Nộp hồ sơ tại UBND trong từng trường hợp cụ thể như sau:

  • UBND cấp huyện cấp giấy phép xây dựng đối với các công trình xây dựng nhà phố trong đô thị.
  • UBND cấp xã cấp giấy phép xây dựng nhà ở riêng lẻ ở những điểm dân cư nông thôn.

Bước 2: Thời gian tiếp nhận

  • Cơ quan có thẩm quyền có trách nhiệm tiếp nhận hồ sơ của tổ chức cá nhân đề nghị cấp phép xây dựng.
  • Trong thời hạn 10 ngày làm việc, kể từ ngày nhận được hồ sơ, đơn vị được giao thẩm định hồ sơ có trách nhiệm xem xét hồ sơ, kiểm tra thực địa (nếu cần thiết).

Bước 3 : Hồ sơ đề nghị cấp phép xây dựng bao gồm

  • Đơn đề nghị cấp giấy phép xây dựng (theo mẫu đối với từng trường hợp, từng loại công trình).
  • Bản sao có chứng thực một trong những giấy tờ về quyền sử dụng đất theo quy định của pháp luật về đất đai.
  • Hai bộ bản vẽ thiết kế do tổ chức, cá nhân có đủ điều kiện năng lực thực hiện và đã được chủ đầu tư tổ chức thẩm định, phê duyệt theo quy định.

Bước 4 : Thời gian cấp giấy phép xây dựng

Kể từ ngày nhận đủ hồ sơ hợp lệ, cơ quan cấp phép xây dựng phải xem xét hồ sơ để cấp giấy phép trong thời gian quy định

Bước 5: Nhận kết quả và nộp lệ phí

Nội dung của bản vẽ xin phép xây dựng nhà phồ 

Nội dung của bản vẽ xin phép xây dựng:
Ảnh: Nội dung của bản vẽ xin phép xây dựng.
  • Bản vẽ xin phép xây dựng nhà phố phải thể hiện được các nội dung bao gồm: sơ đồ chỉ dẫn, họa đồ vị trí, sơ đồ đấu nối kỹ thuật, mặt bằng các tầng, mặt đứng, mặt cắt công trình, mặt bằng móng, mặt cắt móng, mặt bằng và phần mặt cắt hầm tự hoại.
  • Nếu là bản vẽ xin phép xây dựng nhà phố có thay đổi kết cấu công trình (như các trường hợp cải tạo nâng tầng nhà, thêm sàn, …) thì phải có thể hiện các phần diện tích hiện trạng được công nhận và giữ nguyên, các phần diện tích xây dựng mới, bản vẽ gia cố kết cấu, quan trọng nhất là bản vẽ gia cố móng (nếu có).
  • Khi thiết kế bản vẽ xin phép xây dựng nhà phố thì cần tính toán mật độ được phép xây dựng theo quy định của nhà nước, định vị công trình, phần nào xây dựng, phần nào là phần chừa sân trống, các khoảng lùi tầng cao và các khoảng lùi sân thượng, diện tích xây dựng phòng trên tầng thượng (50%). Còn số tầng cao, tổng chiều cao công trình thì phải theo quy định về Quy hoạch và các lộ giới/hẻm giới của khu vực đó.
  • Trường hợp công trình xây dựng có tầng hầm thì bản vẽ xin phép xây dựng nhà phố phải thể hiện được biện pháp thi công chống sạt đất khi thi công đào đất tầng hầm. Một số quận còn quy định thể hiện biện pháp thi công chống sạt đất khi đào đất thi công móng nhà (biện pháp thi công phần ngầm của công trình).
  • Về chiều cao tầng 1 khi xin phép xây dựng nhà phố có tầng lửng: nếu lộ giới trước nhà nhỏ hơn 20m thì chiều cao từ nền tầng trệt (tầng 1) đến nền sàn lầu 1 (tầng 2) là 5.8m, khi đó phân bố chiều cao từ nền tầng trệt lên đến sàn tầng lửng là 3.0m, chiều cao từ nền tầng lửng đến sàn lầu 1 (tầng 2) là 2.8m, hoặc 2.9m +2.9m hoặc 2.8m + 3.0m miễn sao vừa bằng 5.8m. Nếu lộ giới trước nhà lớn hơn 20m thì chiều cao từ nền tầng trệt (tầng 1) đến nền sàn lầu 1 (tầng 2) là 7.0m, khi đó phân bố chiều cao từ nền tầng trệt đến sàn tầng lửng là 3.5m, chiều cao từ nền tầng lửng lên sàn lầu 1 (tầng 2) là 3.5m, còn nếu có làm hầm thì cho hầm nổi lên khỏi vỉa hè 1m hoặc thấp hơn ( quy định tối đa 1.2m), trệt lên lửng 3m, lửng lên lầu 1 là 3m.
  • Độ vươn ra của ban công: đối với nhà mà có lộ giới đường trước nhà trên 20m thì ban công được vươn ra 1.4m, lộ giới trong khoảng 12m – 20m thì ban công được vươn ra 1.2m, từ 6m-12m thì ban công được vươn ra là 0.9m, còn các lộ giới/hẻm giới dưới 6m thì không được vươn ban công ra ngoài lộ giới.
  • Nhà có hai mặt tiền, một phía trước và một bên hông thì cần tính toán thể hiện độ vạt lộ giới, góc vạt này tùy thuộc vào độ giao nhau của hai con đường mà tính ra theo quy định.
  • Để biết được chính xác các thông số quy định của cơ quan Nhà nước khi vẽ bản vẽ xin phép xây dựng, chủ công trình có thể đến UBND Quận/Huyện xin cấp chứng chỉ quy hoạch của khu đất công trình mình.

Các trường hợp phải xin cấp phép xây dựng?

Các trường hợp phải xin cấp phép xây dựng?
Ảnh: Các trường hợp phải xin cấp phép xây dựng?

Theo quy định tại khoản 2 Điều 89 Luật xây dựng năm 2014, tất cả các công trình trước khi tiến hành thi công đều phải có giấy phép xây dựng. Ngoại trừ những trường hợp sau:

a) Công trình bí mật nhà nước, công trình xây dựng theo lệnh khẩn cấp và công trình nằm trên địa bàn của hai đơn vị hành chính cấp tỉnh trở lên;

b) Công trình thuộc dự án đầu tư xây dựng được Thủ tướng Chính phủ, Bộ trưởng, Thủ trưởng cơ quan ngang Bộ, Chủ tịch Ủy ban nhân dân các cấp quyết định đầu tư;

c) Công trình xây dựng tạm phục vụ thi công xây dựng công trình chính;

d) Công trình xây dựng theo tuyến ngoài đô thị nhưng phù hợp với quy hoạch xây dựng đã được cơ quan nhà nước có thẩm quyền phê duyệt hoặc đã được cơ quan nhà nước có thẩm quyền chấp thuận về hướng tuyến công trình;

đ) Công trình xây dựng thuộc dự án khu công nghiệp, khu chế xuất, khu công nghệ cao có quy hoạch chi tiết 1/500 đã được cơ quan nhà nước có thẩm quyền phê duyệt và được thẩm định thiết kế xây dựng theo quy định của Luật này;

e) Nhà ở thuộc dự án phát triển đô thị, dự án phát triển nhà ở có quy mô dưới 7 tầng và tổng diện tích sàn dưới 500m2 có quy hoạch chi tiết 1/500 đã được cơ quan nhà nước có thẩm quyền phê duyệt;

g) Công trình sửa chữa, cải tạo, lắp đặt thiết bị bên trong công trình không làm thay đổi kết cấu chịu lực, không làm thay đổi công năng sử dụng, không làm ảnh hưởng tới môi trường, an toàn công trình;

h) Công trình sửa chữa, cải tạo làm thay đổi kiến trúc mặt ngoài không tiếp giáp với đường trong đô thị có yêu cầu về quản lý kiến trúc;

i) Công trình hạ tầng kỹ thuật ở nông thôn chỉ yêu cầu lập Báo cáo kinh tế – kỹ thuật đầu tư xây dựng và ở khu vực chưa có quy hoạch chi tiết xây dựng điểm dân cư nông thôn được duyệt;

k) Công trình xây dựng ở nông thôn thuộc khu vực chưa có quy hoạch phát triển đô thị và quy hoạch chi tiết xây dựng được duyệt; nhà ở riêng lẻ ở nông thôn, trừ nhà ở riêng lẻ xây dựng trong khu bảo tồn, khu di tích lịch sử – văn hóa;

l) Chủ đầu tư xây dựng công trình được miễn giấy phép xây dựng theo quy định tại các điểm b, d, đ và i khoản này có trách nhiệm thông báo thời điểm khởi công xây dựng kèm theo hồ sơ thiết kế xây dựng đến cơ quan quản lý xây dựng tại địa phương để theo dõi, lưu hồ sơ.

Câu hỏi thường gặp về bản vẽ xin phép xây dựng nhà phố

Câu hỏi: Ai có thể thực hiện việc vẽ bản vẽ xin phép xây dựng nhà phố?

Trả lời: Bản vẽ xin phép xây dựng nhà phố thường được vẽ bởi các chuyên gia trong lĩnh vực kiến trúc hoặc kỹ thuật xây dựng, như kiến trúc sư hoặc kỹ sư xây dựng.

Câu hỏi: Bản vẽ xin phép xây dựng nhà phố bao gồm những thông tin gì?

Trả lời: Bản vẽ xin phép xây dựng nhà phố thường bao gồm các bản vẽ kiến trúc, kỹ thuật, cơ điện, nền móng, cảnh quan, và các thông tin chi tiết về vật liệu và thiết kế của công trình.

Câu hỏi: Tại sao cần có bản vẽ xin phép xây dựng nhà phố?

Trả lời: Bản vẽ xin phép xây dựng nhà phố là một phần quan trọng của quy trình phê duyệt xây dựng, giúp cơ quan quản lý địa phương và các bên liên quan hiểu rõ về dự án và đảm bảo tuân thủ các quy định pháp lý.

Hỗ trợ vay thế chấp toàn quốc – nhận cả hồ sơ khó: nợ xấu, không chứng minh được thu nhập, tài sản ở tỉnh xa, đất nông nghiệp, quy hoạch, diện tích nhỏ, hẻm nhỏ, gần mồ mả, người vay lớn tuổi hoặc đang ở nước ngoài...

Tư vấn tài chính cá nhân & doanh nghiệp: tạo dòng tiền, tái cơ cấu nợ, lên kế hoạch mua sắm tài sản, làm hồ sơ vay vốn cho công ty, xưởng, dự án...

Trọn gói dịch vụ đáo hạn: giải chấp ngân hàng, chuyển đổi khoản vay, mua bán BĐS ba bên, chứng minh tài chính, cho thuê hạn mức, rút tiền thẻ tín dụng, vay tín chấp đến 2 tỷ, cầm cố nhà đất, ô tô...
Hạn mức hỗ trợ: từ 300 triệu đến 100 tỷ – không phân biệt lớn nhỏ.

📞 Hotline 0931.346.386 (Zalo/Viber) – Tư vấn miễn phí 24/7.

Theo dõi
Thông báo của
guest
0 Góp ý
Cũ nhất
Mới nhất Được bỏ phiếu nhiều nhất
Phản hồi nội tuyến
Xem tất cả bình luận
icon-contact Trang chủ icon-contact Showroom
Gọi hotline
icon-contact Chat zalo icon-contact Chat facebook
icon-contact icon-contact icon-contact

Lấy Code