Các bạn chưa hiểu bản vẽ hoàn công là gì? Các loại bản vẽ hoàn công nào? Cách thể hiện và lập bản vẽ hoàn công như thế nào? Một số quy định của Nhà nước về Bản vẽ hoàn công? Đây là những câu hỏi mà chắc hẳn nhiều người còn đang thắc mắc. Do đó để giải đáp cho những thắc mắc đó, hãy cùng chúng tôi tìm hiểu chi tiết qua bài viết dưới đây
Bản vẽ hoàn công là gì?
Bản vẽ hoàn công được định nghĩa là bản vẽ bộ phận công trình, công trình xây dựng đã hoàn thành, trong đó thể hiện chính xác kích thước thực tế so với kích thước thiết kế, được lập trên cơ sở bản vẽ thiết kế thi công đã được cơ quan có thẩm quyền phê duyệt. Mọi sửa đổi khi thực hiện thi công có sự khác biệt so với thiết kế được duyệt phải được thể hiện trên bản vẽ hoàn công.
Trong trường hợp nếu như các kích thước, thông số thực tế thi công của bộ phận công trình xây dựng, công trình xây dựng đúng với các kích thước, thông số của thiết kế bản vẽ thi công thì khi đó bản vẽ thiết kế đó là bản vẽ hoàn công.

Các loại bản vẽ hoàn công?
Bản vẽ hoàn công bao gồm các loại cơ bản sau:
- Loại bản vẽ hoàn công công việc xây dựng;
- Loại bản vẽ hoàn công bộ phận công trình;
- Loại bản vẽ hoàn công giai đoạn xây dựng;
- Loại bản vẽ hoàn công lắp đặt thiết bị;
- Loại bản vẽ hoàn công từng hạng mục công trình;
- Loại bản đồ hoàn công tổng thể công trình.
Vì sao cần phải lập bản vẽ hoàn công?
Do bản vẽ hoàn công sẽ thể hiện các chi tiết và kích thước thực tế khi tiến hành xây dựng, nên nó có vai trò quan trọng giúp chủ nhà nắm được tình trạng ngôi nhà, vị trí chính xác của các hạng mục khi thực hiện sửa chữa, giúp dễ dàng tiến hành bảo trì ngôi nhà.
Bản vẽ hoàn công cũng là giấy tờ cần thiết cho thủ tục hoàn công để hoàn tất quy trình thanh toán cho nhà thầu.
Nói đến mặt pháp lý, bản vẽ hoàn công là cơ sở giúp cơ quan, tổ chức Nhà nước xác định xem chủ nhà có làm đúng theo giấy phép xây dựng cho phép hay không.
Bản vẽ hoàn công khác với bản vẽ thiết kế như thế nào?
Nếu các công trình tiến hành thi công theo đúng bản vẽ gốc và không có gì thay đổi thì khi đó có thể sử dụng chính bản thiết kế ban đầu để làm bản vẽ hoàn công. Trong trường hợp có sự điều chỉnh về kích thước, thiết kế mới thì khi đó cần lập bản vẽ mới.
Trong bản vẽ hoàn công cần phải có dấu xác nhận và chữ ký của các bên có trách nhiệm tham gia, bao gồm người lập bản vẽ, chủ đầu tư, đơn vị thi công, người thực hiện giám sát thi công.
Đơn vị tiến hành thi công có trách nhiệm đóng dấu hoàn công vào bản vẽ.
Mẫu bản vẽ hoàn công có thể được trình bày trên khổ giấy lớn được chia thành nhiều phần thể hiện các hạng mục thi công khác nhau, hoặc có thể đóng thành tập A4 với mỗi trang sẽ thể hiện một hạng mục.

Các yêu cầu (cần phải đạt được) của bản vẽ hoàn công
- Phải phản ánh được tính trung thực kết quả thực hiện thực tế thi công ngoài hiện trường mà không được phép tự bỏ qua các sai số;
- Bản vẽ hoàn công phải được lập ngay tại thời điểm nghiệm thu, không được hồi ký hoàn công;
- Bản vẽ hoàn công phải được lập và xác nhận theo đúng quy định;
- Trên bản vẽ phải thể hiện rõ ràng những chỉnh sửa, thay đổi để sử dụng thuận tiện và chính xác trong việc khai thác , sử dụng và quá trình bảo trì công trình.
Những bên nào tham gia phải có trách nhiệm lập bản vẽ hoàn công
Về cơ bản chúng ta đã có những cái nhìn tổng quan về loại bản vẽ hoàn công này trong ngành thiết kế, thi công xây dựng. Tất nhiên, bạn cũng cần tìm hiểu xem bên nào sẽ có phải chịu trách nhiệm lập bản vẽ hoàn công.
Trách nhiệm lập bản vẽ hoàn công được cụ thể như sau:
Nhà thầu đảm nhận thi công xây dựng có trách nhiệm lập bản vẽ hoàn công hạng mục công trình, công trình xây dựng hoàn thành do mình thực hiện thi công. Riêng đối với các bộ phận công trình bị che khuất phải được lập bản vẽ hoàn công hoặc phải được tiến hành đo đạc xác định kích thước, thông số thực tế trước khi tiến hành công việc tiếp theo.
Đối với trường hợp là nhà thầu liên danh thì từng thành viên trong liên danh phải có trách nhiệm lập bản vẽ hoàn công phần việc do chính mình thực hiện, không được phép ủy quyền cho thành viên khác trong liên danh thực hiện.
Việc lập và xác nhận bản vẽ hoàn công được thực hiện theo hướng dẫn tại Phụ lục II Thông tư 26/2016/TT-BXD do Bộ xây dựng ban hành.
Thời gian lập bản vẽ hoàn thành công trình
Chủ đầu tư thực hiện việc tổ chức lập và lưu trữ hồ sơ hoàn thành công trình xây dựng trước khi tổ chức nghiệm thu hoàn thành hạng mục công trình, công trình xây dựng đưa vào khai thác, sử dụng theo danh mục quy định tại Phụ lục III Thông tư do Bộ xây dựng ban hành. Các nhà thầu trực tiếp tham gia hoạt động xây dựng công trình lập và lưu trữ hồ sơ đối với phần việc do mình thực hiện. Trường hợp nếu như không có bản gốc thì sẽ được thay thế bằng bản chính hoặc bản sao hợp pháp.
Thời gian lưu trữ hồ sơ hoàn công tối thiểu là 10 năm đối với công trình thuộc dự án nhóm A, thời hạn lưu trữ là 7 năm đối với công trình thuộc dự án nhóm B và thời hạn lưu trữ là 5 năm đối với công trình thuộc dự án nhóm C kể từ khi đưa hạng mục công trình, công trình xây dựng vào sử dụng.
Chủ đầu tư tiến hành thực hiện tổ chức lập một bộ hồ sơ phục vụ quản lý, vận hành và bảo trì công trình theo quy định tại Phụ lục IV Thông tư do Bộ xây dựng ban hành, bàn giao lại cho chủ sở hữu hoặc người quản lý, sử dụng công trình. Chủ sở hữu công trình hoặc người quản lý, sử dụng công trình phải có trách nhiệm lưu trữ hồ sơ này trong suốt quá trình thực hiện khai thác, sử dụng công trình.
Trường hợp nếu như đưa hạng mục công trình, công trình xây dựng vào sử dụng từng phần thì chủ đầu tư phải có trách nhiệm tổ chức lập hồ sơ hoàn thành công trình và hồ sơ phục vụ quản lý, vận hành, bảo trì công trình đối với phần công trình đã được đưa vào sử dụng.
Hồ sơ hoàn công nộp vào Lưu trữ lịch sử của công trình thực hiện theo đúng quy định của pháp luật về lưu trữ.
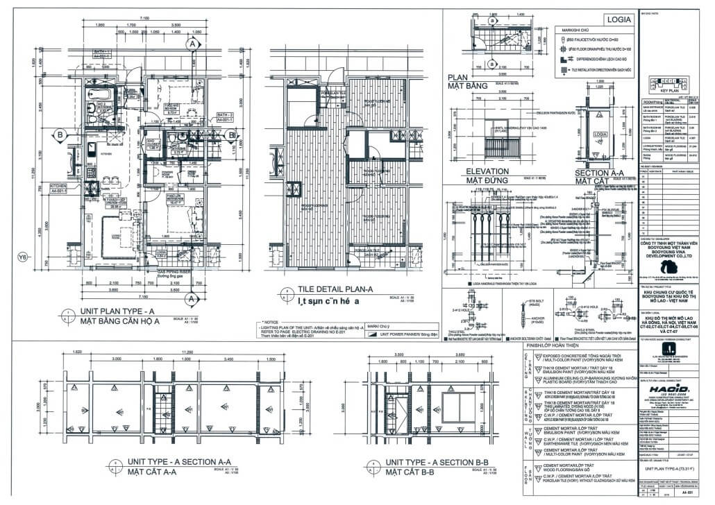
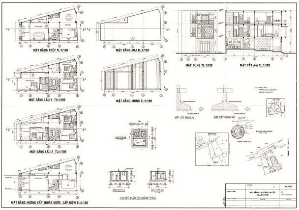
Cách thể hiện và lập bản vẽ?
- Người phụ trách kỹ thuật thi công trực tiếp của nhà thầu thi công xây dựng chụp lại hình vẽ thiết kế bản vẽ thi công phần công việc nghiệm thu, lắp đặt thiết bị tĩnh (bản vẽ copy).
- Tại hiện trường, người phụ trách kỹ thuật thi công trực tiếp của nhà thầu thi công xây dựng công trình đo vẽ hoàn công, ghi các trị số thực tế thi công có thay đổi so với trị số thiết kế trong ngoặc đơn đặt ngay dưới trị số thiết kế, thể hiện các chi tiết thay đổi, bổ sung trên bản vẽ copy và ký tên.
- Khi nghiệm thu, sau khi kiểm tra kết quả đo vẽ hoàn công thấy phản ảnh đúng thực tế thi công thì người giám sát thi công xây dựng công trình của chủ đầu tư hoặc người giám sát thi công xây dựng công trình của tổng thầu đối với hình thức hợp đồng tổng thầu kiểm tra kết quả đo vẽ hoàn công ký tên xác nhận.
Quy định của pháp luật
Trường hợp nếu như các kích thước, thông số thực tế của hạng mục công trình, công trình xây dựng không vượt quá sai số cho phép so với kích thước, thông số thiết kế thì bản vẽ thi công sẽ được chụp (photocopy) lại và được các bên liên quan tham gia đóng dấu, ký xác nhận lên bản vẽ để làm bản vẽ hoàn công.
Trường hợp nếu như các kích thước, thông số thực tế thi công có sự thay đổi so với kích thước, thông số của thiết kế bản vẽ thi công được cơ quan có thẩm quyền phê duyệt thì cho phép nhà thầu thi công xây dựng công trình ghi lại các trị số kích thước, thông số thực tế trong ngoặc đơn bên cạnh hoặc bên dưới các trị số kích thước, thông số cũ trong tờ bản vẽ này;
Nếu như trong trường hợp cần thiết, nhà thầu tiến hành thi công xây dựng có thể vẽ lại bản vẽ hoàn công mới, có khung tên bản vẽ hoàn công tương tự như mẫu dấu bản vẽ hoàn công quy định tại Phụ lục IIB kèm theo Nghị định 06/2021/NĐ-CP của Luật xây dựng ban hành
Trường hợp đối với các bộ phận công trình bị che khuất thì phải được lập bản vẽ hoàn công hoặc được tiến hành đo đạc xác định kích thước, thông số thực tế trước khi tiến hành công việc tiếp theo;
Trong trường hợp nhà thầu liên danh thì từng thành viên trong liên danh có trách nhiệm phải thực hiện lập bản vẽ hoàn công phần việc do mình thực hiện, không được phép ủy quyền cho thành viên khác trong liên danh thực hiện.

Mẫu dấu bản vẽ
Sau khi đã thành lập được bản thi công cuối cùng thì các bên liên quan sẽ phải đóng dấu, ký xác nhận lên bản vẽ để làm bản vẽ hoàn công. Dưới đây là 2 mẫu dấu bản vẽ hoàn công được quy định tại Điều 2 phụ lục II (Kèm theo Thông tư số 26/2016/TT-BXD ban hành ngày 26 tháng 10 năm 2016 của Bộ Xây dựng quy định)
Mẫu số 1: Mẫu này không áp dụng hình thức hợp đồng tổng thầu xây dựng thi công xây dựng. Kích thước dấu còn phải tùy thuộc vào kích cỡ chữ
| TÊN NHÀ THẦU THI CÔNG XÂY DỰNG | ||
| BẢN VẼ HOÀN CÔNG
Ngày……tháng……năm…… |
||
| Người lập
(Ghi rõ họ tên, chức vụ, chữ ký) |
Chỉ huy trưởng công trình hoặc giám đốc dự án
(Ghi rõ họ tên, chữ ký)
|
Tư vấn giám sát trưởng
(Ghi rõ họ tên, chức vụ, chữ ký) |
Ghi chú: không áp dụng cho hình thức hợp đồng tổng thầu xây dựng thi công xây dựng. Kích thước dấu còn tùy thuộc vào kích cỡ chữ.
Mẫu số 2: Mẫu dấu bản vẽ này áp dụng hình thức hợp đồng tổng thầu xây dựng thi công xây dựng. Kích thước dấu cũng còn tùy thuộc kích cỡ chữ.
| TÊN NHÀ THẦU THI CÔNG XÂY DỰNG | |||
| BẢN VẼ HOÀN CÔNG
Ngày……tháng…..năm….. |
|||
| Người lập
(Ghi rõ họ tên, chức vụ, chữ ký) |
Chỉ huy trưởng hoặc giám đốc dự án của nhà thầu phụ
(Ghi rõ họ tên, chữ ký) |
Chỉ huy trưởng hoặc giám đốc dự án của tổng thầu
(Ghi rõ họ tên, chữ ký)
|
Tư vấn giám sát trưởng
(Ghi rõ họ tên, chức vụ, chữ ký) |
Ghi chú: Theo thông tư số 26/2016/TT-BXD ban hành không quy định cụ thể kích thước con dấu bản vẽ hoàn công, kích thước dấu bản vẽ phụ thuộc kích thước chữ. Vì vậy các cơ quan tổ chức sử dụng có thể làm kích thước phù hợp với nhu cầu sử dụng của mình.
Câu hỏi thường gặp?
Câu hỏi: Cần những hồ sơ gì để lập bản vẽ hoàn công?
Trả lời: Cần có các hồ sơ sau:
- Bản vẽ thiết kế thi công đã được phê duyệt
- Biên bản nghiệm thu vật liệu, kết cấu công trình
- Giấy tờ chứng minh nguồn gốc vật liệu
- Các hồ sơ liên quan khác
Câu hỏi: Quy trình lập bản vẽ hoàn công như thế nào?
Trả lời: Quy trình lập bản vẽ gồm các bước sau:
- Nhà thầu thi công thu thập hồ sơ
- Kiểm tra hiện trạng công trình
Vẽ bản vẽ hoàn công - Kiểm tra, thẩm định bản vẽ
- Nộp bản vẽ hoàn công cho chủ đầu tư
Câu hỏi: Một số lưu ý khi lập bản vẽ hoàn công
Trả lời: Dưới đây là một số lưu ý khi bạn lập bản vẽ
- Bản vẽ hoàn công cần được lập chính xác, đầy đủ và đúng theo quy định.
- Bản vẽ hoàn công cần được ký tên, đóng dấu của nhà thầu thi công và chủ đầu tư.
- Bản vẽ hoàn công cần được nộp cho chủ đầu tư trong thời hạn quy định.
Bên trên là những thông tin về định nghĩa bản vẽ hoàn công là gì? Các loại bản vẽ hoàn công cơ bản ? Cách thể hiện và lập bản vẽ hoàn công? Một số quy định của Nhà nước về Bản vẽ hoàn công?. Hy vọng đây là những thông tin hữu ích mà dịch vụ đáo hạn ngân hàng- Trust Holding cung cấp để giúp bạn trong quá trình tìm hiểu về ngành xây dựng. Để biết thêm chi tiết bạn có thể liên hệ trực tiếp dịch vụ chúng tôi để được tư vấn cụ thể nhất.
Hỗ trợ vay thế chấp toàn quốc – nhận cả hồ sơ khó: nợ xấu, không chứng minh được thu nhập, tài sản ở tỉnh xa, đất nông nghiệp, quy hoạch, diện tích nhỏ, hẻm nhỏ, gần mồ mả, người vay lớn tuổi hoặc đang ở nước ngoài...
Tư vấn tài chính cá nhân & doanh nghiệp: tạo dòng tiền, tái cơ cấu nợ, lên kế hoạch mua sắm tài sản, làm hồ sơ vay vốn cho công ty, xưởng, dự án...
Trọn gói dịch vụ đáo hạn: giải chấp ngân hàng, chuyển đổi khoản vay, mua bán BĐS ba bên, chứng minh tài chính, cho thuê hạn mức, rút tiền thẻ tín dụng, vay tín chấp đến 2 tỷ, cầm cố nhà đất, ô tô...
Hạn mức hỗ trợ: từ 300 triệu đến 100 tỷ – không phân biệt lớn nhỏ.📞 Hotline 0931.346.386 (Zalo/Viber) – Tư vấn miễn phí 24/7.
